| [ 索引号 ] | 11500221MB1806137Y/2026-00026 | [ 发文字号 ] | 无文号 |
| [ 主题分类 ] | 其他 | [ 体裁分类 ] | 其他 |
| [ 发布机构 ] | 长寿区应急局 | [ 有效性 ] | |
| [ 成文日期 ] | 2026-03-18 | [ 发布日期 ] | 2026-03-18 |
长寿重庆众思润禾环保科技有限公司 “8.10”一般火灾事故调查报告
长寿重庆众思润禾环保科技有限公司
“8•10”一般火灾事故调查报告
2025年8月10日5时27分许,重庆众思润禾环保科技有限公司3、4、5号危废库房内(主要存放蒸馏残渣、漆渣、沾染物等,乙类库房,2019年投用)突发火情,过火面积940m2,直接经济损失699万元,未造成人员伤亡。
根据《中华人民共和国安全生产法》《生产安全事故报告和调查处理条例》(国务院令第493号)《长寿区人民政府关于授权区应急局组织实施一般生产安全事故调查工作的通知》(长寿府发〔2020〕17号)《重庆市应急管理局关于进一步规范生产安全事故调查组组成人员的通知》(渝应急发〔2024〕18号),依法成立了由区应急管理局牵头,区政府办、区公安局、区总工会、区生态环境局、区消防救援局派员组成的长寿区政府“8·10”一般火灾事故调查组(以下简称事故调查组),并邀请区纪委监委、区检察院参加,同时聘请了安全专家提供技术支持分析,依法对事故开展调查、取证、分析、认定等工作。
事故调查组按照相关规定,本着实事求是,尊重科学的原则,经过反复调查、取证、讨论,对事故原因进行分析,提出了对责任单位和责任人的处理建议,并提出了防范措施。
经调查组认定,该事故系高温天气下危废物料自燃、工人擅离岗未能及时发现并处置火情导致火灾蔓延扩大及重庆众思润禾环保科技有限公司主体责任落实不到位导致的一般生产安全责任事故,事故类型为一般火灾。
1.重庆众思润禾环保科技有限公司(以下简称众思润禾公司)
众思润禾公司成立于2014年3月,注册资本3000万元,法定代表人为XX,统一社会信用代码91500000094537633M,注册地位于XXXXXXXXXX,长寿经济开发区内,经营范围包含:危险废物经营、固体废物治理、生态恢复及生态保护服务。众思润禾公司原属金圆股份控股重庆埠源环保科技有限公司的全资子公司,XXX于2024年12月出资收购金圆所持埠源公司51%股份后,但并未参与公司日常运行管理。金圆股份退出经营管理,宁波明静股权投资管理合伙企业(有限合伙)所持埠源公司39%股份,XX所持埠源公司10%股份。
2.安全消防服务单位四川富市源环保科技有限公司(以下简称富市源环保公司)
富市源环保公司成立于2018年1月15日,注册地位于四川省德阳市什邡市经济开发区(北区),法定代表人为XX。经营范围包括一般项目:技术服务、技术开发、技术咨询、技术交流、技术转让、技术推广;资源再生利用技术研发;环保咨询服务;有色金属合金销售;再生资源销售;生产性废旧金属回收;非金属废料和碎屑加工处理;金属废料和碎屑加工处理;再生资源加工;货物进出口。(除依法须经批准的项目外,凭营业执照依法自主开展经营活动)许可项目:危险废物经营。(依法须经批准的项目,经相关部门批准后方可开展经营活动,具体经营项目以相关部门批准文件或许可证件为准)。
2025年2月10日,众思润禾公司与富市源环保公司签订了《安全消防运营及合规化服务协议》,服务期限自2025年2月10日起至2026年2月9日止,虽然协议约定:由富市源环保公司为众思润禾公司对安全消防等设施设备安全状态进行检查、监管等日常巡查、设施管理、体系维护等;并指派专人负责日常工作,同时负责夜间20时至次日8时消防控制室的值守。但根据调查,实际上众思润禾公司并未要求富市源环保公司履行协议,仅由富市源环保公司派遣了XX作为消防控制室的值守人员,XX的日常管理、教育培训、工作安排及工资发放均由众思润禾公司负责。
XX,男,1965年4月10日生,群众,富市源环保公司员工,于2025年6月1日与富市源环保签订劳务(返聘)协议,合同期:2025.6.1-2026.5.31,被富市源环保公司派遣到众思润禾公司提供安全消防运营及合规化服务(担任消防控制室值班人员)。
经查,因夏季高温天气原因,众思润禾公司自2025年8月8日18:00起停止所有生产设备设施运行,安排库管员1人白天巡查(8时至17时30分),根据众思润禾公司与富市源环保公司签订的《安全消防运营及合规化服务协议》约定:“…同时负责每天(包含法定节假日)20:00至8:00厂区内消防控制室的值守…”,XX作为8月9日晚(值班时间当日20:00至次日8:00)保安兼消防控制室值班人员负责当天厂区门岗及消防室值班。8月10日5时27分许火情发生时,长寿区晏家高速路口一名群众发现该公司厂区有浓烟冒出,随即拨打119报警,119工作人员收到电话后立即打电话通知众思润禾公司的门卫XX,此时众思润禾公司公司的值班人员XX在厂区门岗室睡觉休息未及时发现火情。XX立即打电话给众思润禾公司安全经理XX报告火情,5时36分,消防救援人员抵达现场并立即展开营救。
(1)起火建筑基本情况
起火建筑属于众思润禾公司,位于长寿区晏家街道齐心大道101号附3号,该建筑局部地上5层,占地面积5050.64平方米,总建筑面积9141.04平方米,建筑高度23.95米,属于多层乙类厂房。
根据《重庆市长寿区住房和城乡建设委员会特殊建设工程消防验收意见》(重庆市长寿区住房和城乡建设委员会消验字(2021第0031号),该公司预处理车间为多层乙类厂房。满足《重庆市消防安全重点单位界定标准》(2025版)第八条“1.建筑面积1500平方米以上的甲、乙类生产企业的条件,应为消防重点单位。”
(2)起火建筑危废物料储存情况
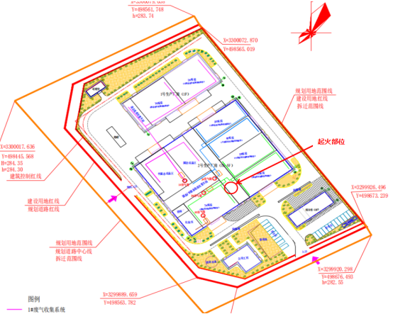
事发时,起火建筑部分预处理间用作暂存库,存储大量有机加工、汽车制造、医药、化工等行业产生的危废物料。依据视频监控显示,起火部位位于2号生产厂房成品转运区通道东南侧距1#楼梯口15.5米处(见图一),起火点存放1个吨桶,吨桶内存有经细破后的沾染污染物的各色织物、薄膜、纤维颗粒,颗粒直径为30~50mm。根据《应急管理部消防救援局天津火灾物证鉴定中心检验报告》(见图1),预处理车间储存的危废物具有自燃特性。




图1 自燃的废弃物检验报告
据调查,危废物料由产废单位按类别分别装入对应吨桶或包装袋,并规范张贴危险废物标签,随后由众思润禾公司收集运输,大部分存放于众思润禾公司独立的库房内,部分存放在事发车间内的7#、8#库房。因众思润禾公司停产,库房存不下收集的危废,暂存在预处理车间内。依据《危险废物处置工程技术导则》(HJ 2042-2014)第6.2.1条预处理等单元为废物接收贮存区,可接收危险废物。
注:《危险废物处置工程技术导则》(HJ 2042-2014)6.2总平面布置
6.2.1危险废物处置厂一般由处置区和生产管理区组成。处置区包括废物接收贮存区、废物处置区、附属功能区等,其中废物接收贮存区应设置废物接收、贮存、分析鉴别、预处理等单元;废物处置区设置废物处置、二次污染防治等单元;附属功能区包括供水、供电、供热等单元。生产管理区设置生产办公和生活等单元。


吨桶 吨袋
注:吨桶由内容器与金属框架组合而成,内容器采用高分子量高密度聚乙烯(HDPE)吹塑成型,金属框架以钢材经自动弯管设备加工制作,耐受温度范围为-40℃至60℃;包装袋一般为吨袋,为塑料编织袋。
火灾发生后,现场勘查起火建筑内存放的大部分原材料、线缆、风机、风管及部分消防设施被烧毁。该建筑存在通风管道穿越楼板处防火阀未动作,部分防火门缺失、部分孔洞未封堵、未采用隔墙隔开等问题,现场勘查图如下(见图2、图3):

图2 现场勘查图

图3 起火部位图
众思润禾消防控制室设置在办公楼一楼,事故当日最高气温约38℃(见图4),消防控制室内未安装空调,因与消防控制室相距约15米,门岗处听不见消防控制室报警声音。企业门岗与消控室的距离(见图5)。



图4 重庆市气候中心《高温日数统计2025年第9期》
相关调查情况
(2)经查阅众思润禾公司制定的2025年安全环保工作计划,安全培训计划、安全教育台账,均无针对承包商富市源环保公司进行培训的内容也无对XX及其他承包商人员的培训记录。该公司安全管理制度亦未明确消防安全责任人、管理人工作职责。
(3)富市源环保公司2025年对XX进行了3次岗前培训。经查,该公司不具备安全消防运营资质。
5时36分,首批消防救援力量抵达现场。经现场侦查,确认起火建筑为危废处理车间及仓库,现场无人员被困。消防指战员立即展开灭火救援行动,同步实施现场警戒和人员疏散。
8时40分,总队全勤指挥部抵达现场,随即靠前指挥,统筹推进灭火救援各项工作。火势于13时15分得到控制,15时37分许,建筑内部残火清理完毕,救援行动结束。
(二)事故应急处置情况
火灾发生后,区委、区政府主要负责同志带领相关部门负责人赶赴现场,组织应急、消防、卫健、公安、环保等有关部门人员全力开展灭火救援和相关保障工作。120急救中心调派1辆救护车、4名急救人员前往救援。110指挥中心先后调派3辆警车、警力10余名,对现场及周边道路进行封闭管控,协助消防开展灭火救援工作。处置期间,共出动各类车辆20辆,参与人员100余人。
(三)善后处置情况
(四)人员伤亡和财产损失情况
本次事故未造成人员伤亡。过火面积940m2,事故造成直接经济损失699万元人民币。
根据《长寿区火灾事故调查组关于重庆众思润禾环保科技有限公司“8.10”一般火灾事故调查情况的报告》(长寿火调文〔2025〕1号)综合分析现场勘验、调查询问、监控视频、供电局供电数据、视频检材分析、微量热能检测和调查实验情况认定:起火部位位于重庆众思环保科技有限公司预处理车间成品转运区通道上,起火点位于成品转运区通道东南侧距1#楼梯口15.5米处,起火原因系危废物料堆积过程中积热引发自燃所致。
结合应急管理部消防救援局天津火灾物证鉴定中心检验报告(图2)及相关人员笔录,事故调查组一致认为,该事故的直接原因系:众思润禾公司在预处理车间成品转运区通道东南侧、距1#楼梯口15.5米处存放一个吨桶,吨桶内储存的沾染油类、漆类、有机溶剂等可燃性危险化学品的各色织物、薄膜、纤维经破碎后的颗粒物,因夏季高温、高湿天气,30-50mm的颗粒状危废物料堆积过程中积热不散,引发自燃,引燃厂房内存储的大量可燃、易燃危废物料,加之提升机井道、建筑的防火阀未动作、防火门缺失、孔洞未封堵,且消防控制室值守人员擅离职守导致初期火情未及时处置,造成火势蔓延,过火面积940m2。
众思润禾公司未严格落实安全生产主体责任,导致火灾蔓延扩大:
- 将安全消防运营及合规化服务交给不具备相应资质的单位。
- 未对被派遣劳动者进行岗位安全操作规程和安全操作技能的教育和培训。
- 未建立相应的机制,保证全员安全生产责任制的落实。该公司未建立相应的机制保证该公司安全管理人员、门岗、消防控制室值班人员等人员的安全职责落实。
- 未落实生产安全事故隐患排查治理制度,采取技术、管理措施,及时发现并消除关于部分防火门缺失、部分防孔洞未封堵、一层隔墙缺失等火灾事故隐患。
2025年编制并印发《关于加强2025年长寿区固体废物环境管理的通知》(长环发〔2025〕19号),明确固体废物环境管理要求,并于2025年5月29日组织众思润禾公司等100余家区内危险废物重点监管企业召开专题培训会。同时,每年委托第三方机构开展危险废物规范化评估,众思润禾公司2023、2024年评估结果均为达标(2025年因火灾事故暂未评估);2024年7月12日,经“双随机一公开”抽取,对众思润禾公司开展现场检查(最近一次检查),未发现环境违法行为,现场仅责令其落实“强化危险废物全过程管理”等要求;2025年前三季度“双随机一公开”执法检查未随机抽取到该企业。众思润禾公司主要处置类别包括HW02医药废物、HW03废药物药品、HW04农药废物、HW06废有机溶剂与含有机溶剂废物在内24大类危险废物,年处置规模为63445吨。2025年至今,该公司累计执行电子联单878笔,接收处置各类危险废物13038.96吨,未超出许可规模。
(二)长寿经开区生态环境局
2022年2月众思润禾公司取得危险废物经营许可证后,经开区生态环境局履行对众思润禾公司日常环境风险隐患排查检查职责,共计开展企业现场排查检查11次(其中环保第三方协助管理单位单独排查2次),发现环境隐患10条,下发隐患整改函1份,所有隐患均已督促企业整改闭环。另外,于2023年6月梳理了工贸8大行业5类重点设施清单提交经开区应急局,并强化了与应急管理部门新改扩建项目环评信息共享和环保设施安全隐患线索移交;2025年7月30日联合区生态环境局召开高温汛期环境安全工作会,会上特别强调危险废物产存处各环节和环保治理设施安全生产要求,众思润禾公司是参会企业之一;2025年8月4日印发工作方案,由经开区应急局和经开区生态环境局联合开展重点企业环保治理设施安全生产排查专项行动,共计排查重点企业65家,发现安全环保隐患593条,已督促企业整改闭环586条,其余7条已督促企业制定整改方案实施整改。
目前从事消防执法的有7人,对本辖区内不属于长寿消防救援局列管的单位双随机系统开展抽查,监管范围是长寿区辖区内,建筑面积达到1500平方米以上的甲乙类生产企业(比如:博腾、映天辉、云天化等公司),目前长寿经开区这类企业有70几家,包括:易燃易爆气体和液体的罐装站、调压站(比如:长寿区所有的加气站、加油加气站);储存易燃易爆的化学物品的专用仓库;锂电池生产企业(长寿区没有这类企业);液化石油气储存站、储配站、罐装站;劳动密集型加工企业(比如生产厂房及仓库具有丙类火灾危险性且同一时间的生产作业人数100人以上,人均建筑面积小于20平方米的生产制造类企业或具有分拣加工包装作业的仓储物流类企业)。2025年1-8月,长寿区消防救援局通过双随机系统抽取了重庆市九龙橡胶制品制造有限公司等76家厂房库房单位(重庆众思润禾环保科技有限公司未抽中),发现火灾隐患89处,督促整改火灾隐患83处,下发处罚决定书18份,不予处罚决定书3份。
五、事故责任分析及处理建议
(一)建议给予行政处罚的单位及人员
1. 重庆众思润禾环保科技有限公司。将安全消防运营及合规化服务交给不具备相应资质的单位,未对被派遣劳动者进行岗位安全操作规程和安全操作技能的教育和培训,未对发现的安全问题及时督促整改,未建立相应的机制保证全员安全生产责任制的落实,未落实生产安全事故隐患排查治理制度,采取技术、管理措施及时发现并消除火灾事故隐患。其行为违反了《中华人民共和国安全生产法》第四十九条第一款[[1]]、第二十八条第二款[[2]]、第二十二条[[3]]、第四十一条第二款[[4]]的规定。对本次事故发生负有主体责任,建议由长寿区应急管理局按照相关法律法规的规定进行处理。
2. XX,男,中共党员,重庆众思润禾环保科技有限公司法定代表人兼总经理,全面负责该公司工作,落实安全风险分级管控和隐患排查治理双重预防工作机制不到位,督促、检查本单位的安全生产工作及时消除生产安全事故隐患不到位,对本次事故发生负有责任。其行为违反了《中华人民共和国安全生产法》第二十一条第五项[[5]]的规定,建议由长寿区应急管理局按照相关法律法规的规定进行处理。
3. XX,男,中共党员,重庆众思润禾环保科技有限公司安全经理,检查该公司的安全生产工作不到位,对本次事故发生负有安全管理责任。其行为违反了《中华人民共和国安全生产法》第二十五条第一款第五项[[6]]的规定,建议由长寿区应急管理局按照相关法律法规的规定进行处理。
(二)其他处理建议
1. 长寿区生态环境局。根据《中共重庆市长寿区委办公室重庆市长寿区人民政府办公室关于印发重庆市长寿区生态环境局职能配置、内设机构和人员编制规定的通知》(长寿委办发〔2019〕33号》和《中共重庆市长寿区委办公室重庆市长寿区人民政府办公室关于进一步明确部分行业领域安全生产监管职责的通知》(长寿委办发〔2023〕16号)文件精神,查《重庆市长寿区生态环境局关于印发重庆市长寿区2025年生态环境行政检查计划(试行)的通知》(长环发〔2025〕16号)文件,经事故调查组核实,区生态环境局在危废物企业安全监管方面存在不足,无资料印证今年“按照管行业必须管安全、管业务必须管安全、管生产经营必须管安全”的要求以来对全部计划监管的企业开展了关于安全生产监督检查活动,也无资料印证其牵头相关专业部门对专业领域实施联合检查督导的情形。为进一步压实安全生产监管责任,建议由区安全生产委员会对该单位进行安全警示,督促其依法全面履行行业安全监管职责。
2. 长寿经开区生态环境局。根据《中共重庆市长寿经济技术开发区工作委员会 长寿经济技术开发区管理委员会 关于印发长寿经济技术开发区安全生产履职清单(2024版)》(长寿经开党工委〔2024〕1号)、《中共重庆市长寿区委办公室重庆市长寿区人民政府办公室关于进一步明确部分行业领域安全生产监管职责的通知》(长寿委办发〔2023〕16号)文件精神,查相关资料,经事故调查组核实,长寿经开区生态环境局在危废物企业安全监管方面存在不足,在多次入企检查指导中,未及时发现企业消防控制室人员长期擅离岗位及企业的部分防火门缺失、部分防孔洞未封堵、一层隔墙缺失等显见的安全隐患,也无督促企业整改消除隐患的具体措施和印证资料,为进一步压实安全生产监管责任,建议由区安全生产委员会对该单位进行安全警示,督促其依法全面履行行业安全监管职责。
3. 本次事故中的其他管理人员XXX、XX履职不到位,建议由众思润禾公司按照内部管理规定对其进行处理,并将处理结果于15日内报区应急管理局备案。
4. 建议区安委办对本次事故所涉及众思润禾公司进行警示约谈。
为深刻吸取本次事故的教训,预防和避免类似事故再次发生,针对本次事故的特点,特提出以下防范和整改措施建议:
一是规范危废存储管理,定期排查物料堆积积热、自燃风险,分类存放可燃、易燃危废。二是加强承包商管理,将承包商纳入本企业的安全培训、隐患排查和考核体系,确保承包商人员明职责、知风险,敬畏安全。三是建立完善规章制度和处置规程,完善消防安全生产责任制,补充关键岗位安全职责,制定灭火疏散应急预案并宣贯落实。四是深化风险隐患排查,全面开展风险辨识,针对高温等特殊时段制定防控措施,建立隐患闭环整改机制。
一是根据《中共重庆市长寿区委办公室重庆市长寿区人民政府办公室关于进一步明确部分行业领域安全生产监管职责的通知》(长寿委办发〔2023〕16号)文件精神,将涉及环保设施设备和项目的企业安全管理纳入监管范围,并落实“三管三必须”要求职责;二是对全区环保设施设备和项目的企业开展一次专项排查治理,建立安全隐患台账,消号闭环管理;三是建立联勤联动机制,与相关行业部门加强信息互通,及时会同研究解决管辖争议问题。
一是加强对企业标准化建设的日常检查,及时发现显性隐患及时处理;二是开展园区企业消防安全隐患排查治理专项行动,加大对环境风险较高企业的检查指导频次,做好服务指导;三是落实属地监管责任,联合相关部门和专业领域专家技术力量,定期开展入企服务指导和监督检查,及时报告重大隐患和治理情况;四是紧盯安全负责人、安全管理机构及人员的职责履行,提高企业安全管理水平和意识。
一是根据《中共重庆市长寿区委办公室重庆市长寿区人民政府办公室关于进一步明确部分行业领域安全生产监管职责的通知》(长寿委办发〔2023〕16号)文件精神及《重庆市消防安全重点单位界定标准》(2025版),及时将相关企业纳入列管范围,特别是对极易造成环境污染的环保企业和项目,开展计划与双随机的执法检查;二是对园区危化、危废处置等高风险企业特别是根据相关标准定为甲乙类库房的企业开展一次消防隐患大排查大整治专项行动,指导企业消除消防隐患;三是建立与区级行业部门联勤联动机制,加大监管合力的形成力度,实施“进一次门、查多项事”的综合查一次惠企政策。
[[1]] 《中华人民共和国安全生产法》第四十九条第一款:“生产经营单位不得将生产经营项目、场所、设备发包或者出租给不具备安全生产条件或者相应资质的单位或者个人。
[[2]] 《中华人民共和国安全生产法》第二十八条第二款:“生产经营单位使用被派遣劳动者的,应当将被派遣劳动者纳入本单位从业人员统一管理,对被派遣劳动者进行岗位安全操作规程和安全操作技能的教育和培训。劳务派遣单位应当对被派遣劳动者进行必要的安全生产教育和培训。”
[[3]] 《中华人民共和国安全生产法》第二十二条:“生产经营单位的全员安全生产责任制应当明确各岗位的责任人员、责任范围和考核标准等内容。生产经营单位应当建立相应的机制,加强对全员安全生产责任制落实情况的监督考核,保证全员安全生产责任制的落实。”
[[4]] 《中华人民共和国安全生产法》第四十一条第二款:“生产经营单位应当建立健全并落实生产安全事故隐患排查治理制度,采取技术、管理措施,及时发现并消除事故隐患。事故隐患排查治理情况应当如实记录,并通过职工大会或者职工代表大会、信息公示栏等方式向从业人员通报。其中,重大事故隐患排查治理情况应当及时向负有安全生产监督管理职责的部门和职工大会或者职工代表大会报告。”
[[5]] 《中华人民共和国安全生产法》第二十一条第五项:“生产经营单位的主要负责人对本单位安全生产工作负有下列职责:(五)组织建立并落实安全风险分级管控和隐患排查治理双重预防工作机制,督促、检查本单位的安全生产工作,及时消除生产安全事故隐患;”
[[6]] 《中华人民共和国安全生产法》第二十五条第一款第五项:“生产经营单位的安全生产管理机构以及安全生产管理人员履行下列职责:(五)检查本单位的安全生产状况,及时排查生产安全事故隐患,提出改进安全生产管理的建议;”






渝公网安备50011502001103号